Aprender de forma presencial apenas com a teoria é o básico...aliás, é o que a maioria das instituições oferece para quem quer se capacitar para ser um farmacêutico clínico. No entanto, aprender na prática é fundamental! Esse é o diferencial daqueles que já saem do curso de especialização prontos para atuar e para fazer a diferença na vida da população.
A farmácia escola do ICTQ – a Clinifar - oferece essa experiência prática, em ambiente de atuação real, que funciona diretamente no atendimento de uma comunidade em São Paulo (SP), mais especificamente no tradicional bairro da Mooca.
Na Clinifar essas aulas são monitoradas por um tutor do Instituto, em tempo integral, oferecendo aos alunos todas as possibilidades de atuação e atendimento clínico que podem ocorrer dentro de uma drogaria, farmácia ou consultório farmacêutico. “Dessa forma, o aprendizado prático dos alunos é dinâmico e adquirido com pacientes reais, com problemáticas de saúde reais, com situações normais e outras inusitadas que surpreendem os alunos a cada hora do dia, dando a eles a experiência exata do que deverão encontrar pela frente, em qualquer outra farmácia do varejo que forem trabalhar”, lembra o fundador do ICTQ, Marcus Vinicius de Andrade.
Como nunca visto antes na história da farmácia deste País!
Agora, nessa mesma farmácia escola do ICTQ, um empreendimento inédito no País está em construção! A Clinifar, que já vinha fornecendo serviço clínico à população por meio de seus farmacêuticos especializados, passa também a tornar esse atendimento uma referência no mercado nacional, com a construção do maior consultório farmacêutico do Brasil, que será inaugurado em abril de 2017!
Nesse espaço, os alunos do ICTQ aprenderão a prestar os serviços farmacêuticos à comunidade local, com a vantagem de estarem num ambiente 100% adequado à aprendizagem, tanto em estrutura física como no suporte e acompanhamento educacional, fornecido pelos professores do Instituto.
O consultório principal tem 45 m2! Ninguém jamais viu igual. É o maior espaço de atenção farmacêutica já desenvolvido dentro de uma farmácia comunitária em todo o País! Para a construção desse ambiente de serviços farmacêuticos, estão sendo usados materiais de altíssima qualidade na estrutura e no acabamento. E isso não se refere apenas ao porte e à qualidade, mas também à funcionalidade do consultório.
Para se ter uma ideia, foi contratada uma equipe de engenheiros e arquitetos especializados em atender às normas da Vigilância Sanitária. Além de cumprir estritamente o que reza a legislação nacional, o projeto é bem ambicioso. Nesse espaço acontecerão os atendimentos num conceito completo e humanizado, que contempla mobiliário especial para acolhimento e anamnese, com suporte para a documentação da consulta, bancadas e carrinhos para preparação de procedimentos, além de todos os equipamentos e utensílios necessários para a prática clínica.
A construção prevê acabamento de primeira qualidade. Isso iguala a infraestrutura ao que se vê em hospitais como o Sírio Libanês e Albert Einstein e, neste caso, o investimento também foi muito mais alto do que pratica o mercado, principalmente por se tratar de uma farmácia escola que será referência para todo varejo brasileiro. Todas as normas relacionadas ao revestimento interno foram respeitadas para piso, parede, teto, iluminação etc.
No entanto, o conceito vai além do consultório. Conectado a esse ambiente de serviços farmacêuticos, está sendo construída também uma sala com capacidade para 30 pessoas para a realização de palestras comunitárias sobre prevenção e cuidados em saúde. Isso seguirá os programas de acompanhamento farmacoterapêuticos que serão instituídos na farmácia escola do ICTQ. Dentre outros temas, lá serão ministrados cursos e palestras com o objetivo de ensinar à população conceitos referentes ao controle da obesidade, tabagismo, hipertensão, diabetes etc.
Esse espaço também será utilizado por professores do ICTQ para as aulas de seus alunos sobre acompanhamento farmacoterapêutico e outros conceitos da clínica farmacêutica.
Orçamento
O arquiteto goiano, Danilo Garcia, especializado em ambientes farmacêuticos e legislação sanitária, foi o responsável pelo projeto e acompanhamento das obras do consultório da Clinifar. Ele comenta que a construção do espaço (partindo do zero), que inclui desde o projeto até o acabamento do consultório, banheiro e sala de treinamento deve custar em torno de R$ 100 mil. Isso inclui:
- Material básico e de acabamento – R$ 36 mil
- Mãos-de-obra – R$ 50 mil
- Projeto – R$ 14 mil
Claro que este valor pode ficar bem mais baixo para outras farmácias, dependendo do tipo de projeto. A maioria das que constroem clínicas, o fazem dentro do próprio espaço do autoatendimento, separando uma parte interna da farmácia com divisórias em PVC para esse fim, e empregando acabamento bem mais simples, o que não é o caso da Clinifar.
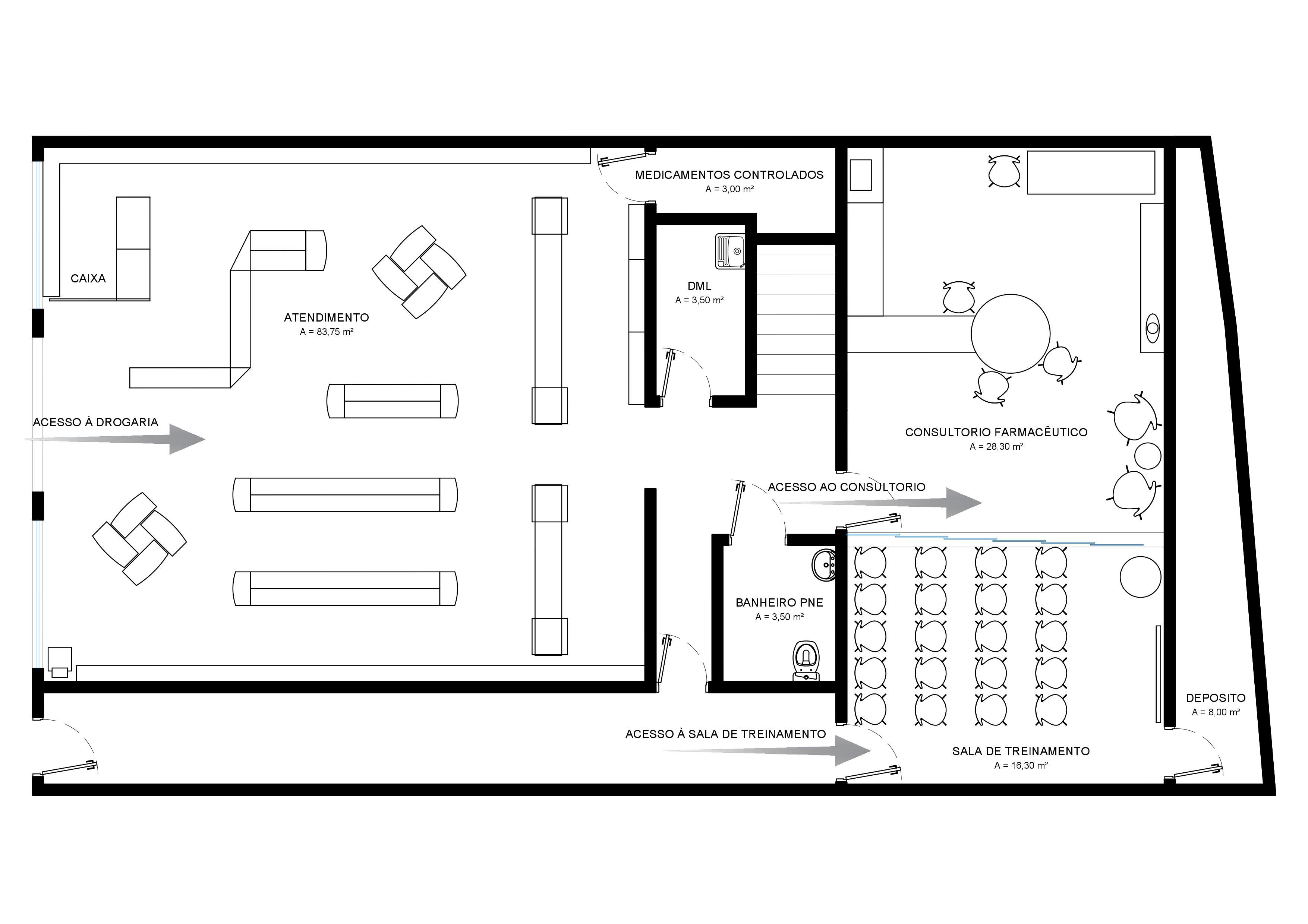
Conforme a figura abaixo, a entrada da drogaria está ao lado esquerdo. O projeto do consultório e a sala de palestras estão na área posterior à da farmácia, do lado direito. Vale lembrar que o acesso à sala de palestras comunitárias também pode ser feito pela entrada lateral da farmácia, sem precisar passar por dentro do estabelecimento, preservando, assim, a comodidade dos clientes.

Mobiliário inovador e diferenciado
Claro que para o consultório funcionar de maneira adequada não basta apenas a estrutura...são necessários móveis de qualidade ajustados às necessidades específicas de atendimento e serviços farmacêuticos.
A farmácia escola do ICTQ apostou 100% no projeto de mobiliário do Grupo Buzattos, a maior empresa do mercado especializada em produzir móveis e acessórios de estrema qualidade para farmácias, consultórios e hospitais. A consultora farmacêutica do Grupo Buzattos, Marilia Mol Lamas, que acompanhou o projeto desta farmácia escola, explicou que há diferentes tipos de projetos destinados a todo tipo de consultório farmacêutico.
A grande maioria das clínicas tem entre 7 m2 e 9 m2. Espaço como o da Clinifar (com 45m2) é único no Brasil. Marilia explica que os custos variam de acordo com a quantidade dos móveis usados. Por isso, ela estima que se gaste nesse quesito entre R$ 7 mil e R$ 15 mil (este último para espaços maiores).
Para o consultório da Clinifar estão previstos mais do que itens e mobiliário clássico, ou seja, haverá:
- maca com colchonete, gaveteiro e escada;
- mesa retangular para estação de trabalho clínico, e para atendimento ao paciente há uma mesa anexa redonda;
- computador com impressora;
- balança de bioimpedância;
- geladeira para vacinas;
- pia com bancadas;
- carrinho para transporte de materiais de procedimentos;
- armário e prateleiras para livros e material de referência técnica;
- armário para guarde de prontuários e outras documentações de controle de pacientes;
- estação automatizada para descarte consciente de medicamentos para pacientes;
- réplica anatômica do corpo humano;
- suportes para material de higienização e esterilização;
- mesinha e cadeiras para espera de acompanhantes e cuidadores;
- sala de palestras: cadeiras com apoio, retroprojetor e sonorização.
Veja projeto abaixo:

Movimento sem volta
De acordo com o departamento de Pesquisa do ICTQ, há cerca de 1.400 consultórios farmacêuticos no Brasil – a grande maioria construída dentro de farmácias de rede e independentes e há alguns estabelecidos fora do ambiente farmacêutico, em clínicas próprias.
A criação de consultórios farmacêuticos é uma tendência que só deve crescer no Brasil, assim como já acontece em países como os Estados Unidos, Canadá e Reino Unido, entre outros.
Diversos players estão investindo nessa ideia, como as grandes redes Pague Menos, São Bento e Araújo, e outros atores de médio e pequeno portes, como a Agafarma Auxiliadora, o farmacêutico Diego Medeiros Guedes (que mantém um consultório clínico em Recife (PE), e o farmacêutico Silvio Antão, conhecido por seu foco em emagrecimento em clínica do Rio de Janeiro (RJ), entre outros.
Apenas para ter uma ideia da configuração mais clássica no País, vale citar a Pague Menos, que possui as salas de sua Clinic Farma em um padrão que mede 7,5 m² (3 m X 2,5 m). A Rede (que tem 930 lojas) já mantém cerca de 450 clínicas dentro de seus espaços, onde oferecem consultas farmacêuticas e outros serviços.
Já a rede de drogarias Araujo ostenta um dos maiores centros de conveniência do País em suas mais de 150 lojas estabelecidas no modelo de drugstore em Minas Gerais. O fundador, Modesto Araujo Neto, explica que se baseia no conceito one stop (uma parada), ou seja, o máximo que se pode oferecer em termos de conveniência para uma pessoa dentro de uma farmácia. E claro, eles têm serviços farmacêuticos em consultórios muito bem estruturados, com cerca de 6 m2 a 9 m2, construídos dentro do local do autosserviço, apenas nas lojas cujos espaços permitem esse serviço.
A rede de drogarias São Bento possui seis clínicas nas filiais que disponibilizam espaço suficiente, sem prejudicar a exposição de alguma categoria. Segundo a superintendente da Rede, Flavia Buainain Thomazi França, a previsão é chegar a 12 consultórios até meados de julho de 2017. Esses espaços têm uma média de 6 m2 e contam com uma estrutura simples, porém confortável, para atender seus pacientes. A rede decidiu não fazer um investimento inicial tão alto para garantir retorno financeiro. A média de cada clínica custou cerca de R$ 6 mil, com a estrutura e mobiliário.
“É óbvio observar que esta é a realidade dos consultórios nacionais em função do retorno sobre investimento (ROI) que os empresários avaliam ao decidir empreender com consultórios farmacêuticos. No entanto, o ICTQ optou por construir o maior e melhor consultório do País, principalmente, para poder oferecer aos alunos da instituição uma farmácia escola que servirá como referência com padrão internacional e, consequentemente, proporcionar à população um atendimento digno e de qualidade superior”, ressalta Andrade.
Para os empresários e farmacêuticos interessados em conhecer a farmácia escola do ICTQ, e para interessados em conversar sobre seus projetos de consultório farmacêutico, o Instituto coloca à disposição todo seu know-how, conhecimento prático e expertise de arquitetos, projetistas, professores e farmacêuticos clínicos. O nosso contato inicial é Ismael Rosa – 0800 602 6660 e e-mail: ismael@ictq.com.br.




